19 Stephen Street
19 Stephen Street, Lytham Saint Annes, Lancashire, FY8
Offers over
£300,000
House
1,604 sq ft
Council Tax Band: D
EPC Rating: D
Key Features
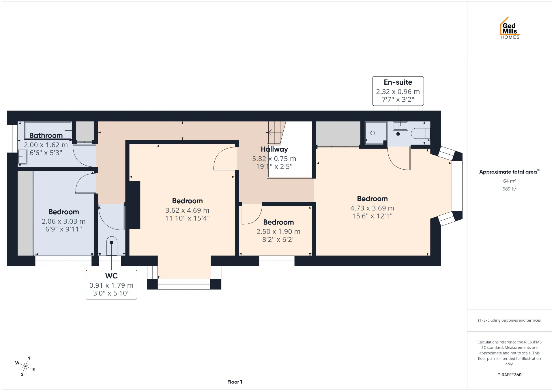
Spacious four-bedroom semi-detached home
Convenient and well-connected location
Generous room sizes throughout
In need of modernisation, offering excellent potential
Large entrance hallway
Lounge and second reception room
Dining kitchen with utility room and pantry
Ground floor WC
Master bedroom with en-suite, plus family bathroom and separate WC
Driveway leading to garage and side garden
About this property
Welcome to Stephen Street—a superb opportunity to acquire a spacious four-bedroom semi-detached home in a highly convenient and well-connected location. Offering generous room sizes throughout, the property is in need of modernisation, making it an ideal project for buyers looking to create a long-term family home and add value along the way.
A large entrance hallway sets the tone for the scale on offer and leads into two substantial reception rooms. The main lounge provides a comfortable everyday living space, while the second reception room offers excellent flexibility as a dining room, family room, playroom or home office. To the rear, a dining kitchen provides ample space for a table and day-to-day family meals, supported by a separate utility room with a useful pantry for additional storage. A ground-floor WC adds everyday practicality and completes the ground floor layout.
Upstairs, four genuine double bedrooms provide impressive family accommodation. The principal bedroom benefits from its own en-suite, while a family bathroom serves the remaining bedrooms, complemented by a separate WC—ideal for busy mornings.
Externally, a driveway leads to a garage for secure parking or storage, and a side garden offers valuable outdoor space with scope to landscape or extend subject to the usual permissions. With its size, flexible footprint and excellent potential, Stephen Street is a rare chance to modernise a substantial home in a well-placed location. Viewing is strongly recommended.






















































































































































































































































































































